项目简介
西岸峰会B馆位于上海中心城区徐汇滨江非常具有公共活力的滨水带旁,紧邻西岸艺术中心(A馆)、与西岸美术馆、油罐艺术公园、龙华直升机场等西岸艺术空间为邻。伴随着人工智能大会与科技产业的集聚,艺术与科技的融合成为了西岸滨江城市建设的全新话题。通过简练的形式,务实的建造人机协作的巧思和全预制装配结构体系,快速实现了建筑工业化、绿色化以及智能化的具体实践,完整呈现了建筑绿色智能建造的系统化解决方案。
引未来城市建筑发展的西岸滨江建设今年迎来了一项新的挑战——世界人工智能大会(WAIC)于2018年9月17-19日在上海西岸举行。作为2018世界人工智能大会的主会场之一,西岸峰会B馆设计工作从2018年4月启动,建造实施也紧凑地于2018年6月展开,并在2018年9月顺利实现了8885㎡的空间呈现。
▼西岸峰会会馆 ©田方方
在人工智能通过互联网、虚拟现实、机器智能等算法技术飞速刷新我们认知的时候,如何在100天里呈现一个可以承载人工智能技术集中展示的城市公共展览空间呢?这个呈现过程是否可以在人工智能已然到来的时代,回应我们建筑产业将如何实现观念与技术的改变呢?西岸峰会B馆位于上海中心城区徐汇滨江非常具有公共活力的滨水带旁,紧邻西岸艺术中心(A馆)、与西岸美术馆、油罐艺术公园、龙华直升机场等西岸艺术空间为邻。伴随着人工智能大会与科技产业的集聚,艺术与科技的融合成为了西岸滨江城市建设的全新话题。我们通过简练的形式,务实的建造,人机协作的巧思和全预制装配结构体系,快速实现了建筑工业化、绿色化以及智能化的具体实践,完整呈现了建筑绿色智能建造的系统化解决方案。
▼建筑概览©田方方
白色:绿色西岸中的纯粹几何
WHITE: Simple Geometry Within Green West Bund
白色的基调统一着西岸滨江公共建筑的整体气质。克制的形式与色彩勾勒出上海西岸的独特当代艺术氛围,典雅的白色与绿色的滨江开放空间形成着简练的对话。这种平实、简洁的状态似乎已成为大家的默契与共识。
▼建筑白色的基调与西岸滨江公共建筑的整体气质相符©田方方
无论是已经建成的David Chipperfiled设计的西岸美术馆,还是建设中的SANNA设计的办公空间,都在试图通过纯粹几何的形体回应西岸滨江密路网、小街坊的空间规划。西岸峰会B馆的体量构思充分回应了西岸滨江的城市肌理,根据未来展览、峰会、论坛等功能需要被有机划分为三个主体体量,同时首尾相连的平面几何也形成了简洁的整体性。 空间几何的自然扭动,与城市街道以及周边建筑取得肌理上的呼应。西岸峰会B馆主体量采用了基本的坡屋顶建筑语汇,简洁的结构几何逻辑使其符合快速建造的要求,并可以Z大化地适应未来的不同使用需要。
▼西岸峰会B馆的体量构思充分回应了西岸滨江的城市肌理 ©金晋错
间隙:建筑中的共享公园
INTERVAL: Shared Gardens In Between Buildings
西岸峰会B馆的三个主体量的扭转形成了两个三角形的绿色入口公园——有遮蔽、半开放的共享城市空间。进入这个空间,木结构的网壳屋顶带来扑面而来的温暖气息。白色与木色的交融即是一种意外惊喜,也是让人欣喜并愿意停留、交往的空间场景。
▼三角形入口公园 ©田方方
▼木结构的网壳屋顶带来扑面而来的温暖气息©田方方
经过功能定位与使用状况分析,综合考虑维护与内部安全管理的需要,未来三个主要功能空间会出现不同使用场景,一个、两个或三个空间都可能出现单独使用的状况。这两个共享公园会出现两种不同的应用场景:全开放时,将门全部打开形成城市口袋公园;半开放时,则变成组织内部流线的入口空间与内部公共空间,将三个分散的体量在城市空间和界面上连成一体,同时为大规模会务的人流量和辅助功能提供缓冲和休憩空间。另外,在其中相对较大的共享花园中,我们设计了一个120m2的半透明3d打印咖啡厅以及近50个座椅区域,形成峰会席间休息、交流以及茶歇等功能的空间,同时提升空间场所的全新个性与场所特色。
▼花园尽端的交通空间 ©田方方
▼墙面细部 ©田方方
▼共享花园中的3d打印咖啡厅 ©田方方
覆盖:温暖的互承式参数化木构
COVERAGE: Warm Parametric Timber Structure
共享花园被主体量自然地围合成一大一小两个三角形,从空间特性上也自然地界定为一动一静,都通过数字预制化木构拱壳顶棚加以覆盖;大庭院屋顶跨度约为40m,结构厚度为0.5m,是全球单元材料省的互承式钢木结构屋顶。通过数字化的力学找形,木构屋顶整体微微起拱,实现了力学的合理布置。整体木构拱架的侧推力通过周圈的横向布置钢桁架得以平衡,并在三个角部通过局部加强。内侧木构拱壳全部优化为互承方式的双幅中空叠合式木梁,并通过计算机二次找形优化所有木梁的几何尺寸,使得单根木梁在胶合时做到材料更优,安装时3-4个工人就可以搬运,也提高了现场的安装效率。
所有的梁头通过参数化的方式进行非标设计优化,并通过平行数据指导数字工厂进行节点数字化铣削和开孔加工。连接件采用了标准化的中空铝构造,进一步减轻了屋顶重量,同时方便预制加工与现场施工组织。2000平米的木壳部分现场29天的施工周期,全部通过预制拼装的方式得以实现。顶棚在侧面微微高于主会议空间,这样可以形成更好地地面通风效果。顶部通过聚碳酸酯瓦楞板加以覆盖,光线经过几层过滤后洒在共享花园中。
▼顶棚在侧面微微高于主会议空间,这样可以形成更好地地面通风效果 ©田方方
赛博:绿色公园中的机器人3D打印咖啡厅
CYBORG: 3D Robotic Printed Pavilion
共享花园中我们设计、建造了世界上规模的全机器人3D打印咖啡厅,既包括了空间本身,也包含了咖啡售品台、咖啡桌椅以及辅助房间。打印亭从形式上尝试通过五个对拼拱的方式来进行生形处理,通过平面动线确定生形逻辑,并根据受力特性决定形态的起拱方式,再逐步优化其打印逻辑,使得力学、形式、工艺实现了完整统一。
▼世界上规模的全机器人3D打印咖啡厅 ©田方方
材料:机器编织的碳纤维亭
MATERIALITY: The Elytra Filament Pavilion
在场馆的入口前,一个黑白相间的空间装置为整洁的白色会场增添了一丝轻盈。该装置由斯图加特大学计算机设计学院(ICD)和建筑结构设计学院(ITKE)联合设计建造,采用独特的机器人编织技术,开拓性地集合了建筑学、工程学和仿生学的原理,展示出了独特的空间设计美感。
▼机器编织的碳纤维亭 ©田方方
占地200平米的结构灵感来源于自然界的轻型结构原理,其中主要的是一种在甲壳虫前翅上发现的纤维状翅鞘结构。起伏的顶棚包含40个各不相同的六边形构件单元,由透明的玻璃纤维和黑色的碳纤维编制而成。碳纤维材料的高抗拉性与玻璃纤维的高抗压性在机器人的紧密交叠编织下演变为一个个单住支撑的伞状结构,在展现高结构性能的同时,也异常轻盈。
▼夜幕下的碳纤维亭 ©田方方
智造:模数化结构几何的全预制化建造
INTELLIGENCE: Fully Prefabricated Modular System
西岸峰会B馆尝试重新定义从设计到建造的整个流程;数据模型在一定程度上取代了通常意义上的图纸成为形式、结构、预制加工和现场安装的媒介;通过数字化智能几何找形、参数化力学建造优化方法以及平行数据指导数字工厂加工和建造的方法,尝试重新定义建筑各个环节智能化的不同推进方式,实现智能化设计建造一体化实践。主空间采用了轻铝排架预制体系,轻铝结构具有体系成熟、施工准、配套成熟的特点,而且是目前已知的单方材料重量小的遮蔽建筑体系;考虑峰会快速搭建的需要,建筑模数和典型立面尽量采用了常规化的体系内产品;同时为提高主立面的城市完整度,通过精致化的十字钢龙骨体系和聚碳酸酯板结合的半隐框幕墙来提升立面品质;十字化的龙骨处理形成了半透明的空间质感,优雅的实现了城市空间和会展空间的切换和过滤;主入口略微收进,利用屋顶空间的延伸行成入口廊下空间,暗示主立面入口的所在,但超人的尺度又不鼓励人做过多停留,以配合大量人流进出的管理需要。
▼略微收进的建筑主入口&半隐框幕墙立面 ©田方方
主空间侧面的空间界面考虑运营的需要选择不同的封闭属性,临向城市街道的界面尽量封闭,隔绝噪音以及城市环境对会务活动的干扰;临向共享花园的界面尽量开敞,使得紧张的会务之余,人们可以从感知自然变化,光影婆娑。屋顶选择了成熟的多层复合的屋顶覆膜系统,这样在满足会务需求的声学特性同时,提升整个项目在能耗方面的标准。
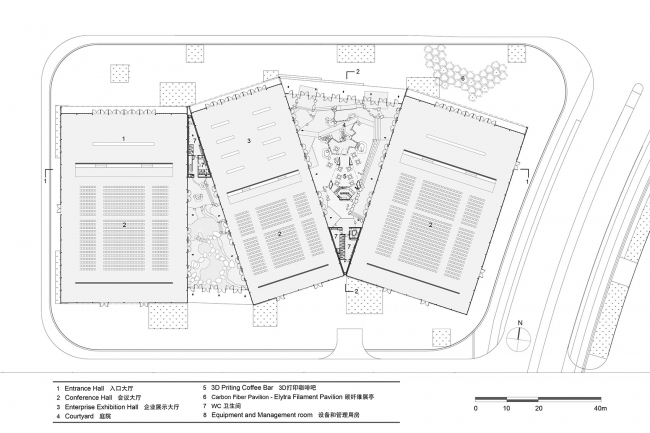
▼总平面图 ©金晋错
▼平面图 ©金晋错
▼立面图 ©金晋错
▼剖面图 ©金晋错
项目名称:西岸人工智能峰会B馆 地点:上海市徐汇区龙腾大道 建设单位: 上海西岸开发(集团)有限公司 建筑设计:上海创盟国际建筑设计有限公司 主创建筑师:袁烽 | 建筑面积:8885㎡ 设计时间:2018年4 月-2018年7月 建造时间:2018年5 月-2018年8月 |
